[三の丸小学区]ここには大きな青がある
| 家賃 | 200,000円 |
|---|---|
| 所在地 | 小田原市浜町1-3-22 グランシャトレ小田原1103号室 |
| 面積 | 77.81㎡ |
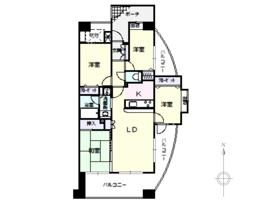
| 間取り | 4LDK |
| 最寄駅 | 東海道線小田原駅 徒歩11分、約850m |

LDKの東向きの窓。遠くに三浦半島が見えます
この青い青い景色を前にしたら、すぅ…はーーーーーー、と思わず深呼吸してしまいました。窓の向こうには広がるオーシャンビュー。そして寄り添う大きな空。あぁ、なんという気持ちよさ…!
まるでリゾートホテルみたいに海と空を眺められる我が家、小田原なら駅徒歩圏内で叶ってしまいます。家族で暮らせる海見えの賃貸探してた!という方、これが運命の出会いになるかも。

東向きのバルコニー

南向きのバルコニー。東側のバルコニーとL字につながっています
東と南の2面にバルコニーのある角部屋です。だから、4LDKのうち一部屋を覗いてどの居室からも海が見えます。賃貸で募集をしていますが、建物そのものは分譲マンションなので水回りを中心に設備のスペックが高いのがポイント!

LDK

LDKを和室側から。キッチンカウンターの下はたっぷりの収納棚!

キッチンからも明るい空が見えます

さすが分譲!ビルトインのオーブンと食洗機のあるキッチンです

LDKと隣り合う和室

LDKの東隣の洋室

もちろんばっちり海見え!日中はカーテンなしで過ごしたい

北東の角部屋。こちらも小さめのバルコニーに出られます

北西のお部屋だけは窓が廊下に面しているため暗めです

洗面台/浴室(浴室乾燥機あり)/洗濯機置場

ベビーカーやアウトドアグッズなども置けるポーチ付き玄関。これも分譲らしい設備
ところでこのサイト内では何度かお伝えしたことがありますが、実は小田原駅徒歩圏内で海の見える戸建というのはとても数が少ないです。海岸と市街地との間に背の高い西湘バイパスがドンと構えてしまっているため、海岸線から1列目であるとか、3階建以上や屋上からならなんとか見えるかな…という感じ。だから小田原駅周辺で海見え物件を探すならマンションがおすすめなんです。
このマンションがあるのは御幸の浜までは徒歩5分(約350m)、小田原城址公園までは徒歩6分(約450m)と「THE小田原!」な立地ですが、旧三福不動産的には足元が青物町商店街&宮小路というのもイチオシ!個性あるお店が集まっているエリアで、ガッツリお腹を満たせるお肉系からおしゃれなワインバー、地場野菜たっぷりのカフェ、ECでは即完売のスパイス焼き菓子、ハイセンスなセレクトショップなどなどなど…行きつけにしたくなるお店に必ず出会えます。ご近所のお店巡りもぜひ楽しんでほしいなぁ。このエリアについて詳しくはこちらを。
住まいの中でも外でも暮らしを楽しめるお部屋です。家族で暮らせる4LDK、三の丸小学区、しかも賃貸!とバチッとハマればうれしい条件揃い。移住希望でまずは賃貸を…とお考えの方もぜひ!
※定期借家契約(2年)です
[文・寺田]
▼小田原駅徒歩圏内にマンション最上階(7階)のお部屋もご紹介中!
物件情報
| 家賃 | 200,000円 |
|---|---|
| 所在地 | 小田原市浜町1-3-22 グランシャトレ小田原1103号室 |
| 面積 | 77.81㎡ |
| 間取り | 4LDK |
| 最寄駅 | 東海道線小田原駅 徒歩11分、約850m |
| 敷金 | 2ヶ月 |
| 礼金 | 1ヶ月 |
| 管理費等 | 26,260円 |
| 駐車場 | 有 14,000円(立体駐車場:全長5,000mm/全幅1,850mm/高さ1,550mm) |
| 小学校学区 | 小田原市立三の丸小学校(徒歩8分,約600m) |
| 中学校学区 | 小田原市立城山中学校(徒歩19分,約1,500m) |
| 築年数 | 2005/01 |
| 設備 | 角部屋,ガスコンロ,システムキッチン,追い焚き,独立洗面台,シャワー,温水洗浄便座,エアコン,室内洗濯機置き場,BSアンテナ,オートロック,都市ガス,公営水道,エレベータ,宅配ボックス,駐車場有,駐輪場,バルコニー |
| 取引態様 | 仲介 |
| 建物構造 | SRC 13階建 |
| 契約期間 | 定期借家2年 |
| 所在階 | 13階建11階部分 |
| 現況 | 空 |
| 引渡し時期 | 相談 |
| 記事公開日 | 2025.10.30 |





















