贅沢な一棟貸ビル!ビルドインガレージに屋上に。
| 家賃 | 240,000円 |
|---|---|
| 所在地 | 小田原市南町3-2-52 |
| 面積 | 144.06㎡ |
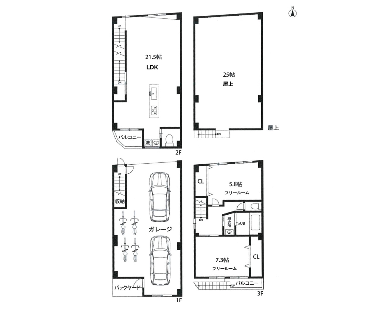
| 間取り | 2LDK+ガレージ |
| 最寄駅 | 東海道線小田原駅 徒歩17分、約1,300m |
一棟ビルを丸ごと借りられる、贅沢な賃貸物件の登場です!

木造の一戸建ての賃貸はよくありますが、鉄筋コンクリートの3階建ビル1棟の賃貸は珍しいですね。
ファミリーで居住としてお住まいになることはもちろんのこと、オフィスでの利用もご相談可!1階ガレージには車種によりますが2台は停められますし、数人の設計事務所とか小規模なオフィスなら十分広さがあります。寝泊まりのできるサテライトオフィスなんて使い方も面白そう。
屋上からは360度抜けた景色があって、仕事の合間に屋上でリフレッシュ!なんていいなぁ。
しかも、この物件のある南町からは車なら約13分で箱根湯本に行けるので温泉までも近い!仕事終わりにひとっ風呂ができちゃうなんて素敵すぎる。
飲食は流石にできないですが、店舗用途での利用も業種内容により相談はできます。(改装NG)たとえばギャラリー兼住居とか、ショールーム兼住居とか、ちょっとした物販もできそうです。
ちなみに西隣(画面左側)の白い建物とほぼくっついているように見えますが別の建物です。西隣は「L’OFFICINA DEL CIBO – ロフィチーナ デル チーボ」という完全予約制のイタリア料理店。とても雰囲気の良いお店なのでこちらもオススメです。
※室内は貸主様の家具、家電、照明器具等がありますが、全て無償貸与品となります。ご自由にお使いいただけますが持ち出しは不可、また破損不具合等については貸主は修理/交換/撤去は行いませんので借主の必要に応じて修理等行なうこととなります。
※当記事と現況が異なる場合には、現況を優先といたします。
[1F ビルドインガレージ]



これだけの広々としたガレージは魅力的!車だけでなくバイクガレージとしてもいいですね。
国道1号線に面していますが、歩道の切り下げ部分が広めなので車は停めやすいです。また信号機の近くなので赤で車が停まっていれば、そんなに焦らずにバックで敷地内まで入れます。
[2F]

ワンフロアで広々としたリビング

内装リフォーム済みで綺麗な状態です。

アイランドキッチン

南側で陽の入ってくるダイニングスペース

ここでゆったりとした時間を

2階にトイレと洗面台、室内洗濯機置場
[3F]

南側の約7.3帖の洋室。

しっかり1間分のクローゼット付き

ラグを敷くだけでグッとおしゃれな空間に。

北側の約5.8帖の洋室。

3階にお風呂があります。
[屋上]

屋上はこの景色!

海の水平線も見える

お城もチラっと

こんな風に夕日がきれいに見える日も
内装はリフォームされていて綺麗で、ビルドインガレージ付きでさらにこの屋上付きの一棟ビルとは本当に贅沢だな〜。お家賃はちょっと張るけど、それだけの価値を感じる物件です。
******
ちなみにおまけ情報なんですが、お隣のおしゃれなイタリアンレストラン、チーボさんは数年前に二宮和也さん、大沢たかおさん主演の月9ドラマの舞台として外観が使われていました。すなわちこの物件もドラマに何度も登場してるんですねぇ…。配信されることがあったらぜひチェックしてみてほしいです!
メイキング動画にもちょっと映ってました。
https://share.google/ZJDUXaGUd8liBilUd
※こちらの物件は3年の定期借家契約(再契約可)となります。
▼こちらは元寿司屋を改装した一棟売りビル。
物件情報
| 家賃 | 240,000円 |
|---|---|
| 所在地 | 小田原市南町3-2-52 |
| 面積 | 144.06㎡ |
| 間取り | 2LDK+ガレージ |
| 最寄駅 | 東海道線小田原駅 徒歩17分、約1,300m |
| 敷金 | 2ヶ月 |
| 管理費等 | 8,000円 |
| 駐車場 | 有 無料 |
| 小学校学区 | 小田原市立三の丸小学校(450m,徒歩6分) |
| 中学校学区 | 小田原市立城山中学校(1,400m,徒歩18分) |
| 築年数 | 1977/11 |
| 設備 | 事務所可,ペット対応,リノベーション済,ガスコンロ,三口コンロ,給湯,追い焚き,独立洗面台,温水洗浄便座,エアコン,都市ガス,公営水道,排水下水,家具・家電付 |
| 取引態様 | 仲介 |
| 建物構造 | 鉄筋コンクリート造陸屋根3階建 |
| 契約期間 | [定期借家]3年(再契約可) |
| 現況 | 空室 |
| 引渡し時期 | 相談 |
| 備考 | ・3年定期借家契約(再契約可) ・保証会社加入要(初回保証料賃料等総額の100~120%、口座振替手数料330円/月) ・ペット相談可 ・民泊不可。事務所利用可。店舗については業種内容等にて要相談。 ・エアコンは設備となります。 ・家具/家電/照明器具は無償貸与とし室内からの持ち出し不可。破損不具合等については貸主は修理/交換/撤去は行いませんので借主の必要に応じて修理等行なうこととなります。 ・当記事と現況が異なる場合には、現況を優先といたします。 |
| 記事公開日 | 2026.04.03 |





















